No. 62 Florence Road is a well-located property positioned close to Bray Town Centre, the Dart and Bray Sea Front & Promenade. The property comes with full planning permission to remodel the existing accommodation into a 1-bedroom townhouse with study/home office.
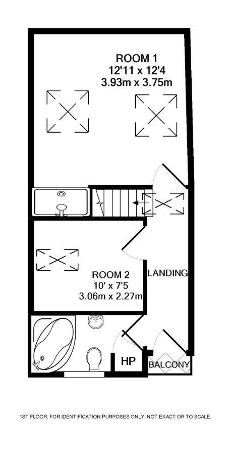
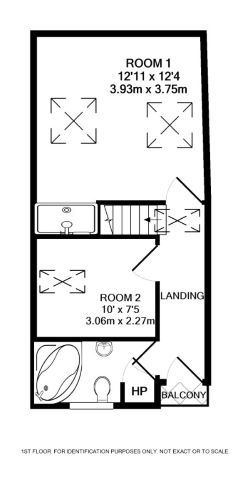
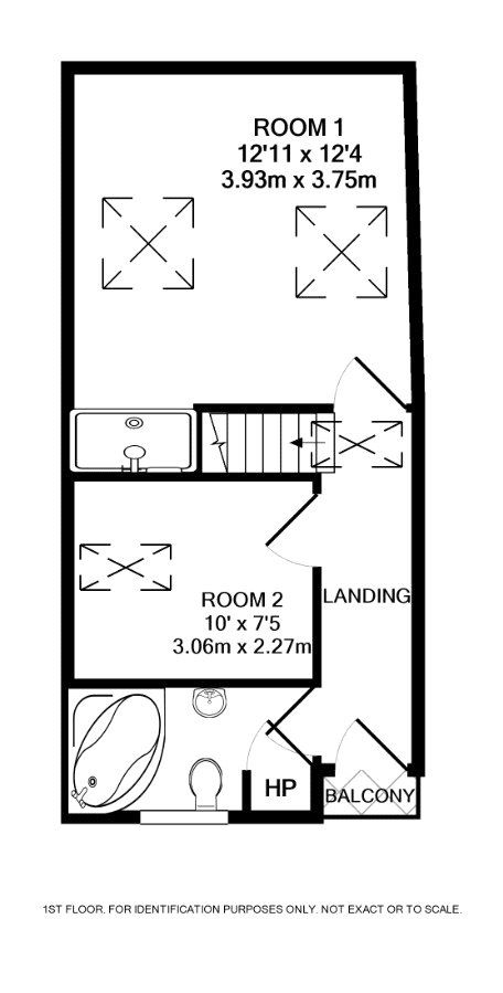
The existing layout of the property comprises a small hall that leads to a good-sized kitchen dining room, off the kitchen dining room is a ground floor room with stairs leading to the first floor. Upstairs there are 2 further rooms and a bathroom. Velux roof lights flood these rooms with natural light.
The property is currently being presented to the market as an opportunity for cash buyers or potential investors to inspect as a redevelopment opportunity in a location offering great scope for investment. Serviced by excellent public transport links and with a host of amenities on its doorstep, including the new Florentine Shopping Centre/Cinema and an abundance of local shops, restaurants, bars and cafes.
The property could be converted into a commercial premises if required subject to the usual planning process. The property is located in an area zoned the Bray Gateway and Transport hub. It is the objective that the area surrounding the station shall be developed as a ‘gateway’ to the town with clear linkages to Bray Town Centre and the Seafront. The area is considered suitable for higher density mixed use development including retail, commercial, office, residential and civic use.
Personal inspection is recommended.
Features:
4 room two storey building
Gross floor area of approx. 67 Sq M
Super location close to Bray Dart station and Bray seafront
Close proximity to all amenities and services
Double glazed windows
Gas fired central heating
Modern kitchen
Good sized bathroom
Ful planning permission remodel to 1 bedroom townhouse with office/study
Redevelopment opportunity
Hall 2.2m x 1.29m (7'3" x 4'3")
Kitchen 3.98m x 3.75m (13'1" x 12'4")
Ground floor room 4.39m x 3.63m (14'5" x 11'11")
Landing
First Floor Room 1 4.46m x 3.93m (14'8" x 12'11")
First Floor Room 2 3.05m x 2.27m (10' x 7'5")
Bathroom 2.83m x 1.67m (9'3" x 5'6")
View a Virtual Tour
Submit an enquiry and someone will be in contact shortly.
By setting a proxy bid, the system will automatically bid on your behalf to maintain your position as the highest bidder, up to your proxy bid amount. If you are outbid, you will be notified via email so you can opt to increase your bid if you so choose.
If two of more users place identical bids, the bid that was placed first takes precedence, and this includes proxy bids.
Another bidder placed an automatic proxy bid greater or equal to the bid you have just placed. You will need to bid again to stand a chance of winning.